- Project Location: Doha – Qatar
- Start Date: May 2018
- Complete Date: Apr 2019
- Service Provided:
- Interior Design
- Furniture Shopping Tour

Italian Interior Design in Qatar
Our team of interior designers was recently responsible for designing a luxury residence, bringing Italian home decor in Doha, the capital of Qatar. This young, small, wealthy country has set their sights on modernity.
The cosmopolitan city of Doha is architecturally fascinating, which the futuristic skyscrapers of the Skyline can attest to. The project that we undertook in Doha regarded a modern four-story villa with a marvelous attic that offers views of the city.
The clients, a family of six, contacted us from Qatar to express their interest in a professional interior design project. The first phase of the project was carried out entirely as an online design service. The clients only came to Italy at the end of the consultation process to confirm the interior finishes that we had previously agreed upon.
Our design team’s task for this interior design project in Qatar was to curate the interior decor and to select the furniture in order to create a contemporary style villa with luxury finishes.

Style and Italian home decor for a luxury villa in Doha
Carefully choosing distinctive elements for a home interior project is always very important for personalizing the spaces of a residence and this interior design project in Qatar was no different. Besides the furniture, our designers also chose the home accessories, such as rugs and wallpaper, distinctive marks that we find in many spaces of this home.

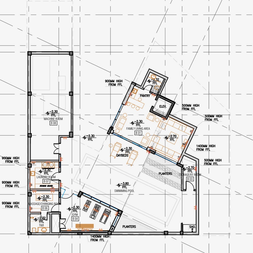
Our project began at the basement level, where the main element is a large indoor pool. This sizable enclosed space is where the family can relax and entertain their guests. On the same floor, there are also a furnished lounge area, a gym, and a massage room.
For the poolside area, our interior decorator chose designer furniture pieces with a minimalist style and soft colors, in particular, white and juniper green sunbeds and side tables from Kettal. The sunbeds feature an aluminum structure and fabric upholstery.
For the family living area on the basement floor, our interior designers kept the same subtle color palette utilizing soft tones such as beige and green. The choice of the Bitta sofa and Roll armchairs from Kettal created an ambiance of modernity. More decor details were added to give personality to the room, including a colorful outdoor rug from Kettal, poufs, and a zigzag pattern vase, also from Kettal. The family living area, which features a convenient corner bar, opens onto a large lounge space. The perimeter of the room is lined with Confluence sofas and the Mon Repos coffee table from Ligne Roset. The vibrant botanical-themed wallpaper, Banano from Coordonnè, highlights the beige and dove-gray color palette of the furnishings.

A modern living area with Italian design

The distribution of the rooms of this large villa is quite complicated. Each floor alternates shared spaces for the family and their guests.
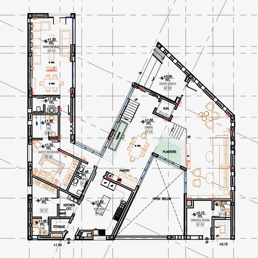
Moving from the basement floor to the ground floor, we enter into the heart of the home represented by a large living area. From the entrance, you enter directly into the living area, and by going down a few steps, you will find the modern and elegant dining room.
For the living area of this interior design project in Qatar, the decorators chose to create a small conversation corner with three Febo armchairs from Maxalto. In the greater living area, we selected the angular sofa Dives from B&B Italia, paired with two elegant armchairs upholstered in brown leather with a beige-colored seat. We finished off this space with another coffee table, this time with a white marble top, a choice that was motivated by the desire to bring Italian home decor to Doha.
For the TV area, we went for the Modern console from Porro in ivory and orange. This lively detail accentuates the buoyant colors in the geometric wallpaper chosen for this room from Cole&Son.

The dining room for an elegant residence in Doha
To highlight the continuity between the living area and the dining room, our interior decorators chose another wallpaper from Cole&Son that features the same pattern as that in the living area, but in more subtle colors. The same rhombus pattern of the wallpaper can also be found in the rug from Kasthall.
The style of the dining room is marked by simplicity and elegance, and once again, our interior designers chose to bring Italian home decor to Doha. For the furnishings, we selected a dining table with a Calacatta marble top and bronze legs and dining chairs with cream-colored upholstery.
Through the dining room, you enter the kitchen. This room had already been furnished by the clients before our studio’s involvement in this project, as were the flooring and wardrobes.
Also on the ground floor, an external wing of the building houses other private rooms of this marvelous villa, including a service bathroom, a guest room with an elegant bathroom, and a discreet and sophisticated lounge area.
The night area and other exclusive spaces of this luxury residence in Doha

The villa orbits around a central block that houses the staircase and elevator. This block unites all the floors of the house from the basement to the attic.
On both the first and attic floors, a staircase leads to a space that has been furnished as a family living area, from which the other rooms on the floors branch out.
On the first floor, this casual living area leads to the bedroom area where we find the children’s four rooms. The rooms are endowed with every comfort, including a private bathroom and dressing room.
Each bedroom has been furnished according to personal style, looking at the proposals of the most important Italian designer brands.
Furnishing the attic with Italian home decor in Doha

Finally, the last floor of this modern home features a living area that doubles as a study, the master bedroom, and a spacious terrace with panoramic views of the city, private and exclusive spaces that offer every comfort. In furnishing this floor, our interior designers chose high-quality designer furniture, taking from the best proposals of Italian design.
On the attic level, the gray-blue wall color can also be found in the living room furniture and accessories. We see this shade in the Gender armchair by Cassina, in leather and melange ice fabric, as well as in the sky blue of the Solatium sofa from B&B Italia with fabric upholstery.
To pair with these pieces, our interior designers chose the Pathos coffee table from B&B Italia, which stands out for the dark tones of the black chrome metal frame.
In the study area, on the other hand, our designers decided on the Pathos table with a round top and glossy desert lacquered finish as the coffee table, and to match, two Elettra chairs from Arflex with a black lacquered structure and beige fabric. The result is made more casual by the Ingrid Icon rug from Kasthall, which completes the design of this space.
A rooftop garden with views of Doha
In this interior design project in Qatar, the allocation of the spaces is linear and straightforward. On the attic floor, this approach allowed for the creation of a large and comfortable master bedroom with a dressing room and an ample bathroom complete with every comfort.
Establishing the style of the master bedroom is the sophisticated Narina wallpaper from Cole&Son, which features a stylized bird feather design.
Regarding the furniture, our designers chose an understated and elegant bed with sand-colored upholstery and the 4040 bedside tables by Molteni&C in grey oakwood. Next to the bed is a niche that livens up the floor plan of the room. Our designers personalized this little corner space with a beige colored bench with capitonné finish and moka legs.
We opted for contemporary style armchairs with a yellow finish and moka ash legs and a small table with a rosewood top and lacquered base.

But the real crown jewel of the attic floor is the outstanding rooftop garden, whose prime views can only be enjoyed from this luxury villa in Qatar. The panoramic terrace is swathed in greenery from plants and flowers and furnished with the Italian design icon Charles sofa from B&B Italia and fat-sofa armchair and pouf from B&B Italia.

For this high-end interior design Qatar project, our experienced team of professional interior designers were asked to select and bring Italian Home Decor in Doha. If you are looking for Italian expertise and Italian Furniture in Qatar and you would like to experience something unique, check our Italian Furniture Shopping Tour.
